Traumhafte 4-Raumwohnung
Inmitten von Frohburg
Frohburg, Etage| Gartennutzung | |
| Bad | |
| Bad mit Fenster | |
| Dusche | |
| Bauweise | |
| Massivhaus | |
| Befeuerung | |
| Gas | |
| Fußbodenbelag | |
| Fliesen | |
| Laminat | |
| Linoleum | |
| Heizungsart | |
| Etagenheizung | |
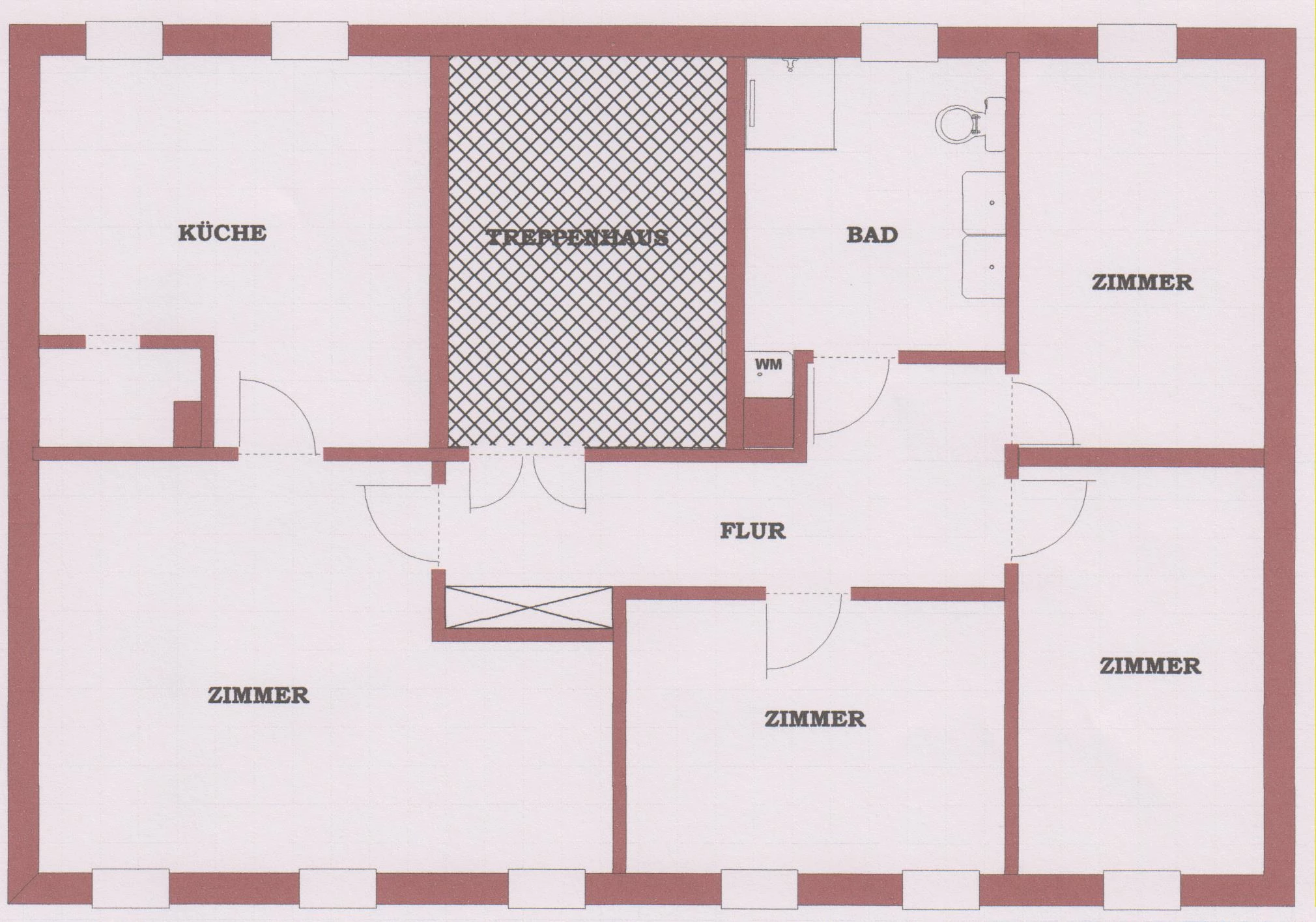
| Wohnfläche | |
| 82.54 m² | |
| Zimmer | |
| 4 | |
| Schlafzimmer | |
| 3 | |
| Badezimmer | |
| 1 | |
Traumhafte 4-Raumwohnung
Inmitten von Frohburg
Frohburg ist eine westsächsische Kleinstadt mit ca. 4.378 Einwohnern.
Zur Stadt gehören die Ortsteile Kohren-Sahlis, Benndorf, Bubendorf, Greifenhain, Streitwald, Eschefeld, Frauendorf, Nenkersdorf, Roda und Schönau. Die Stadt liegt an der B95, der Hauptverkehrsstraße zwischen den beiden sächsischen Zentren Chemnitz und Leipzig. Sie kann auf eine über 750-jährige Geschichte zurückblicken.
Das Wohnhaus liegt zentrumsnah. Mehrere Einkaufsmöglichkeiten, verschiedene Arztpraxen, eine Bushaltestelle sowie die Schule befinden sich in unmittelbarer Nähe.
Das Wohnzimmer ist mit Laminat und die restlichen Wohnräume sowie die Küche und der Flur sind mit PVC-Belag ausgestattet. Das Tageslicht-Duschbad ist komplett gefliest.
Die Wohnung ist mit eine Gas-Etagenheizung ausgestattet. Demzufolge werden die Heizkosten direkt vom Mieter getragen und sind nicht in der Gesamtmiete enthalten.
Die Warmwasserbereitung erfolgt über einen elektronischen Durchlauferhitzer.
Die Anmietung eines PKW-Stellplatzes auf dem Grundstück ist für monatlich 20,-€ möglich.
Zur Wohnung gehört ein Schuppen. Im Hof des Grundstücks steht für alle Mieter des Hauses ein Wäscheplatz zur Verfügung.
Individuelle Ausstattungsmerkmale:
- Doppelwaschtisch im Badezimmer
Alle Angaben sind ohne Gewähr. Irrtümer vorbehalten.
Lage
Adresse Von-Falkenstein-Str. 16 04654, Frohburg | ||
| Kaltmiete | |
| 445 EUR | |
| Warmmiete | |
| 610 EUR | |
| Nebenkosten | |
| 165 EUR | |
| Kaution | |
| 1335 EUR | |
| Baujahr | |
| 1920 | |
| Energieausweisklasse | |
| H | |
| Primärenergieträger | |
| Gas | |
| Ausstellungsdatum Energieausweis | |
| 27.11.2014 | |
| Energieausweis gültig bis | |
| 27.11.2024 | |




































