Wohnen in Jugendstilvilla
Sanierte 3-Zimmer-Wohnung
Langenleuba-Niederhain, Etage| Abstellraum | |
| Bad | |
| Bad mit Fenster | |
| Wanne | |
| Dusche | |
| Bauweise | |
| Massivhaus | |
| Befeuerung | |
| Gas | |
| Fußbodenbelag | |
| Linoleum | |
| Parkett | |
| Heizungsart | |
| Zentralheizung | |
| Stellplatzart | |
| Freiplatz | |
| Keller | |
| Ja | |
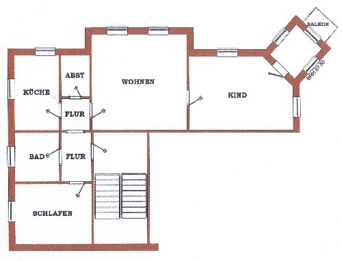
| Wohnfläche | |
| 93 m² | |
| Zimmer | |
| 3.5 | |
| Schlafzimmer | |
| 2 | |
| Badezimmer | |
| 1 | |
| Balkon | |
| Ja (1) | |
Wohnen in Jugendstilvilla
sanierte 3-Zimmer-Wohnung
Langenleuba-Niederhain ist eine Gemeinde in der Verwaltungsgemeinschaft Wieratal im thüringischen Landkreis Altenburger Land.
Penig liegt 9 km östlich, die Kreisstadt Altenburg 11 km westlich, Frohburg 11 km nördlich und Glauchau 16 km südlich.
Das um 1900 erbaute Wohn- und Geschäftshaus wurde liebevoll saniert. Im Erdgeschoss des Hauses befindet sich eine Zahnarztpraxis.
Im Wohn- und Kinderzimmer ist Parkettboden verlegt. Das Schlafzimmer, die Küche, der Abstellraum sowie der Flur ist mit PVC-Belag ausgestattet. Das Tageslichtbad mit Wanne und Dusche ist komplett gefliest. Den kleinen Balkon erreicht man über ein zusätzliches Turmzimmer.
Lage
Adresse Gartenstr. 2 04618, Langenleuba-Niederhain | ||
| Kaltmiete | |
| 370 EUR | |
| Warmmiete | |
| 610 EUR | |
| Nebenkosten | |
| 240 EUR | |
| Kaution | |
| 1110 EUR | |
| Baujahr | |
| 1905 | |
| Energieverbrauchskennwert | |
| 145,00 kWh/m² | |
| Energieausweisklasse | |
| E | |
| Primärenergieträger | |
| Gas | |
| Ausstellungsdatum Energieausweis | |
| 20.11.2018 | |
| Energieausweis gültig bis | |
| 20.11.2028 | |










